68 Islington Street, Collingwood
Offices
Fully Renovated Office Space - Move In Now Develop Later
Vision Real Estate are pleased to offer a rare opportunity to purchase a fully renovated architect design Office building at 68 Islington Street, Collingwood.
Located in one the hotest locations in inner city Melbourne, all of the hard work has been done with this building. Renovated to the highest of standards and move in ready. Freehold title with no owners corporation fees. Close to Smith Street shopping precint and walking distance to trains, trams and busses and only minutes to the CBD.
Adding to this exceptional opportunity is the much sought after mixed use zoning which offers endless furture development options.
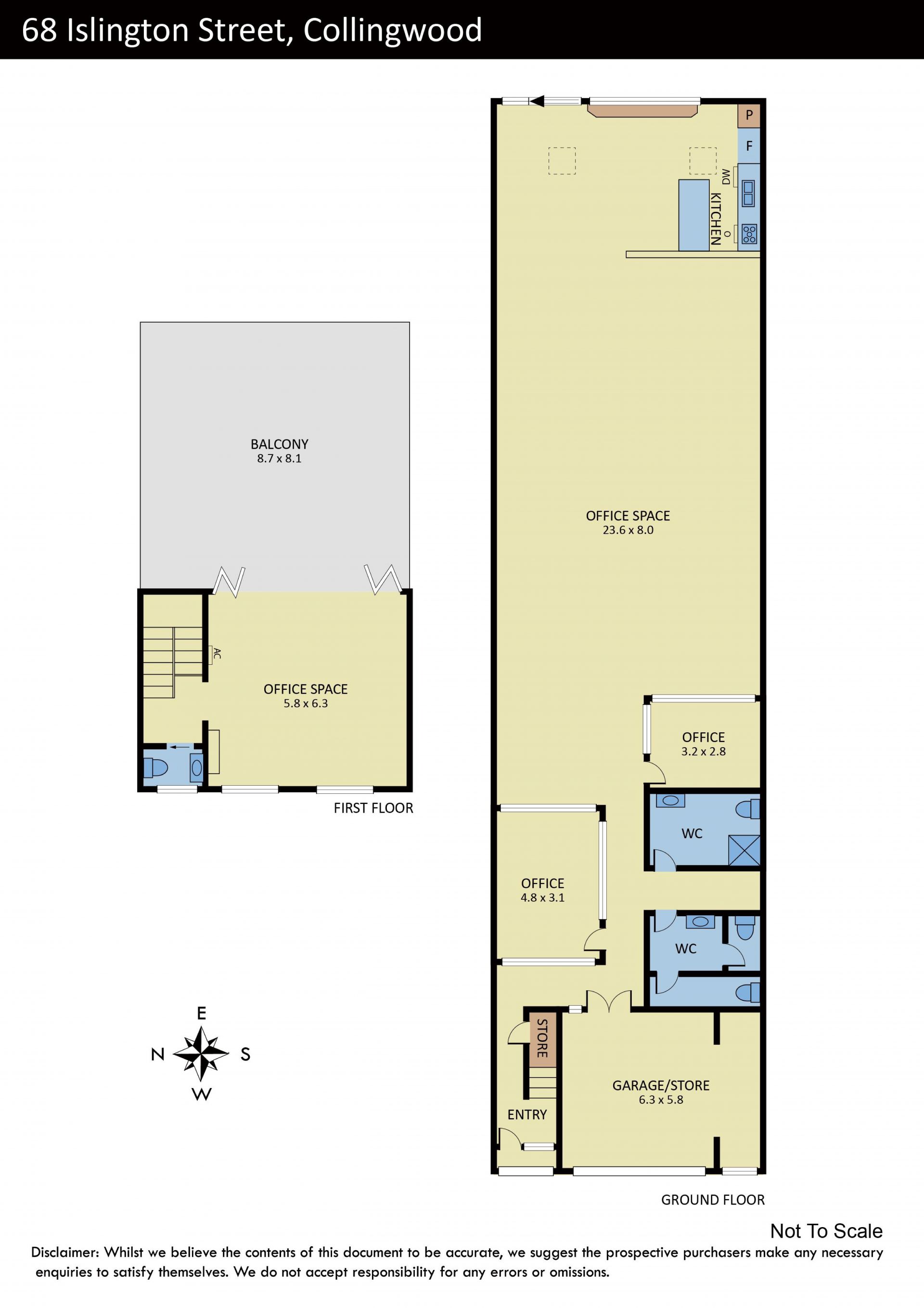
* Total Building area: 386m2
* Total Land area: 330m2
* Two street frontages with dual access
* Mix of open plan and partitioned offices
* Polished concrete floors throughout
* Excellent natural light
* Full kitchen and multiple amenities
* Fully airconditioned and cabled (high speed Fibre) throughout.
* First floor board room with city views
* Intergrated sound system and speakers
* Security system including monitored alarm and cameras
* Excellent car parking from Hoddle Street and garage from Islington Street
* Huge roof top terrace
* Zoning Commercial 1 (mixed use)
No expense has been spared in the transformation of this industrial style office showroom space.
For Sale By Expressions of Interest closing Thursday 23rd March 2023 at 3.00pm.
For all enquiries please Contact Tim Bindley
Located in one the hotest locations in inner city Melbourne, all of the hard work has been done with this building. Renovated to the highest of standards and move in ready. Freehold title with no owners corporation fees. Close to Smith Street shopping precint and walking distance to trains, trams and busses and only minutes to the CBD.
Adding to this exceptional opportunity is the much sought after mixed use zoning which offers endless furture development options.
* Total Building area: 386m2
* Total Land area: 330m2
* Two street frontages with dual access
* Mix of open plan and partitioned offices
* Polished concrete floors throughout
* Excellent natural light
* Full kitchen and multiple amenities
* Fully airconditioned and cabled (high speed Fibre) throughout.
* First floor board room with city views
* Intergrated sound system and speakers
* Security system including monitored alarm and cameras
* Excellent car parking from Hoddle Street and garage from Islington Street
* Huge roof top terrace
* Zoning Commercial 1 (mixed use)
No expense has been spared in the transformation of this industrial style office showroom space.
For Sale By Expressions of Interest closing Thursday 23rd March 2023 at 3.00pm.
For all enquiries please Contact Tim Bindley
