355 Wellington Street, Clifton Hill
Retail
AFFORDABLE CITY FRINGE OPPORTUNITY- LIVE WORK INVEST.
Vision Real Estate has the pleasure in offering this magnificent corner opportunity suitable for Investors, Owner occupiers and Developers.
The property is flanked by the Internationally recognised Smith St Precinct, Darling Gardens and Queens Parade Shopping Village Precinct. It is also conveniently positioned close to the Melbourne CBD while having easy access to Greater Melbourne via excellent road linkages.
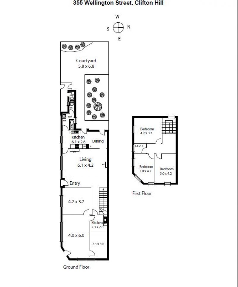
*Land Area: 206m2*
*Building Area: 133m2*
*Functional 4 Bed Dwelling & Ground Floor Home Office.
*Potential for 100% Office Use.
*Unbeatable Main Rd Presence
*Private Amenities
*Rear Yard
*Rear Right Of Way Access
*Zoning: Neighbourhood Residential Zone 1
*No GST Payable
355 Wellington Street, Clifton Hill is a large multi-use premises combining accommodation with work space which includes a kitchen, bathroom and rear access from the rear Right Of Way. The premises can also be exclusively used for a home combining 4 bedrooms, living, study, separate loungeroom, kitchen, bathroom complimented with rear garden space.
For further information contact Frank Romeo on 0405 703 470.
*approximately
The property is flanked by the Internationally recognised Smith St Precinct, Darling Gardens and Queens Parade Shopping Village Precinct. It is also conveniently positioned close to the Melbourne CBD while having easy access to Greater Melbourne via excellent road linkages.
*Land Area: 206m2*
*Building Area: 133m2*
*Functional 4 Bed Dwelling & Ground Floor Home Office.
*Potential for 100% Office Use.
*Unbeatable Main Rd Presence
*Private Amenities
*Rear Yard
*Rear Right Of Way Access
*Zoning: Neighbourhood Residential Zone 1
*No GST Payable
355 Wellington Street, Clifton Hill is a large multi-use premises combining accommodation with work space which includes a kitchen, bathroom and rear access from the rear Right Of Way. The premises can also be exclusively used for a home combining 4 bedrooms, living, study, separate loungeroom, kitchen, bathroom complimented with rear garden space.
For further information contact Frank Romeo on 0405 703 470.
*approximately
